Fuengirola

Te koop Penthouse Duplex Costa Del Sol Fuengirola € 495.000,-

Ref.no: RSOR5316040
Price: € 495.000,-

1-7980e48d732b6fc85c14b43b94d2aa54.jpg

Te koop Penthouse Duplex Costa Del Sol Fuengirola € 495.000,-

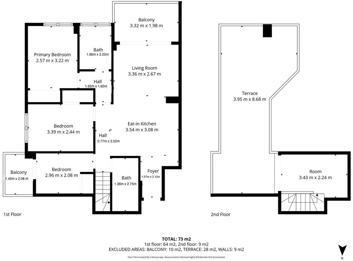
Bedrooms3
Salles de bains2
Living area70m²
Poolyes
Gardenyes
Parkingyes
Instelling: dicht bij winkels, dicht bij de stad, dicht bij scholen
Orientatie: Oost, Zuidoost, Zuid, Zuidwest, West
Staat: Uitstekend, Nieuwbouw
Zwembad: gemeenschappelijk, binnen
Klimaatregeling: airconditioning
Uitzicht: zee, bergen, panoramisch, zwembad, stedelijk
Équipements : Ascenseur, placards aménagés, proximité des transports en commun, terrasse privée, solarium, salle de sport, débarras, buanderie, navette gratuite
Meubels: gedeeltelijk gemeubileerd
Keuken: volledig ingericht
Tuin: Gemeenschappelijk
Beveiliging: Gated Complex
Parkeren: ondergronds, garage
Hulpprogramma's: elektriciteit, drinkwater, telefoon
Categorie: Wederverkoop
Ref.no: RSOR5316040
Price: € 495.000,-

Plus d'information ›››
Te koop Penthouse Duplex Costa Del Sol Fuengirola € 495.000,-

Magnifique penthouse en duplex avec vue panoramique dans la résidence Pine Hill, à Fuengirola !

Ce magnifique duplex-penthouse neuf offre un agencement confortable et bien pensé avec trois chambres et deux salles de bains, idéal pour profiter pleinement du style de vie de la Costa del Sol. Vendu entièrement meublé et jamais habité, ce bien représente une opportunité rare d'acquérir une résidence neuve, prête à vous accueillir.

L'appartement bénéficie d'une situation idéale au sein de la résidence, offrant un cadre paisible et de magnifiques vues panoramiques.

Le niveau principal comprend un espace de vie accueillant avec un salon s'ouvrant sur un balcon privé, créant un agréable espace extérieur pour se détendre et profiter du paysage environnant.
À l'étage, vous découvrirez une vaste terrasse privative sur le toit, ainsi qu'un espace supplémentaire idéal pour aménager un bureau, un espace de travail ou un coin détente. Cet étage offre un cadre polyvalent, parfait pour le télétravail ou un moment de calme.

La terrasse sur le toit offre un espace abrité et paisible, idéal pour bronzer, dîner ou recevoir des invités tout en profitant d'une vue imprenable.

Le prix comprend une place de parking privée dans le garage souterrain ainsi qu'un local de rangement séparé.

Située dans le complexe résidentiel moderne de Pine Hill Residences, la résidence offre à ses habitants un accès à d'excellentes installations, notamment des piscines, un spa, une salle de sport et des espaces communs, le tout à quelques minutes en voiture des plages, des restaurants et des services de Fuengirola.

Une opportunité fantastique d'acquérir un penthouse flambant neuf sur la Costa del Sol.

Alternatives

BOHAAP4875_26919_V1_945D.jpg

Te koop Appartement Costa Del Sol Estepona Centro € 585.000,-

Price € 585.000,-
Plus d'information
BOHACP1408_4593_V1_6FC9.jpg

Te koop Penthouse Costa Del Sol Casares € 455.000,-

Price € 455.000,-
Plus d'information
1-7980e48d732b6fc85c14b43b94d2aa54.jpg

Te koop Penthouse Costa Del Sol Benalmadena Pueblo € 577.500,-

Price € 577.500,-
Plus d'information
1-7980e48d732b6fc85c14b43b94d2aa54.jpg

Te koop Penthouse Duplex Costa Del Sol Mijas Golf € 485.000,-

Price € 485.000,-
Plus d'information
Disclaimer | Links
Casadelmar %lng_cookie_notice% %lng_close%
x