Vélez-málaga

Te koop Residential Plot Costa Del Sol Vélez-málaga € 805.000,-

Ref.no: RSOR5305549
Price: € 805.000,-

1-7980e48d732b6fc85c14b43b94d2aa54.jpg

Te koop Residential Plot Costa Del Sol Vélez-málaga € 805.000,-

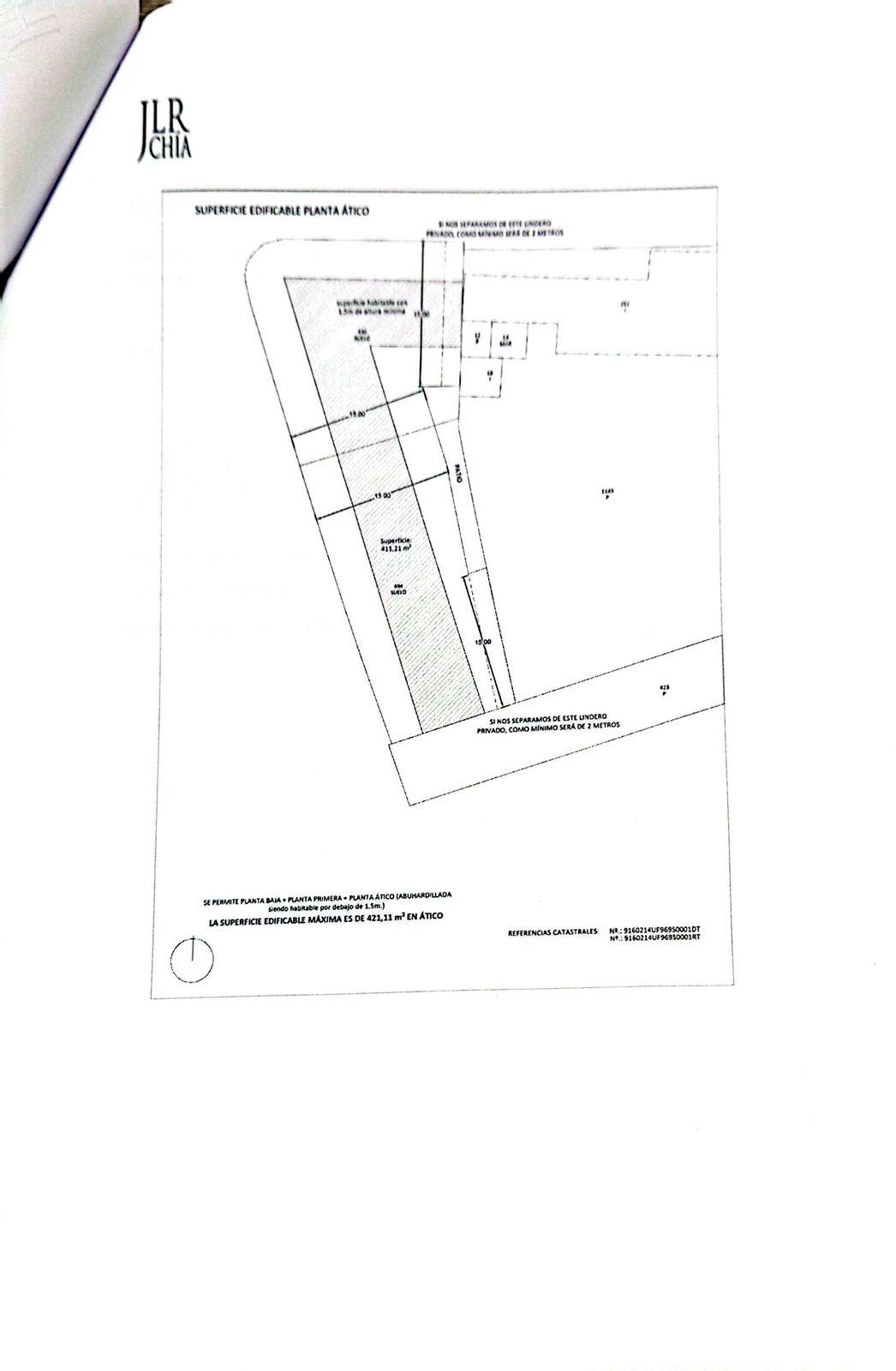
Superficie du terrain945m²
Poolno
Gardenyes
Parkingno
Ref.no: RSOR5305549
Price: € 805.000,-

Plus d'information ›››
Te koop Residential Plot Costa Del Sol Vélez-málaga € 805.000,-

Two urban plots for sale in Almáyate with a total surface area of 945 m², marketed jointly, representing an excellent investment opportunity in a rapidly growing area of the municipality of Vélez-Málaga.

The plots have a preliminary project (anteproyecto) for the construction of multi-family residential housing, in accordance with the current municipal planning regulations of Vélez-Málaga. They are classified as CTP-1 Urban Land, allowing for the development of a residential project with strong profitability potential.

Located in a शांत and well-connected area, just a few minutes from the beach and with easy access to services, shops, and main transport routes, these plots offer ideal conditions for developers and investors looking to build a residential development on the Costa del Sol.

The indicated price does not include taxes or expenses. The purchase will be subject to Property Transfer Tax (ITP) at 7–0.5–0.3%) calculated on the purchase price.

The amounts provided are for information purposes only and may vary depending on each specific case.

For this property, the approximate costs will be:

Property Transfer Tax (7%): €56,350

Notary: between €2,415 (0.3)

Land Registry: between €805 (0.1)

The purchase of this property does not entail any real estate agency fees for the buyer.

Alternatives

1-7980e48d732b6fc85c14b43b94d2aa54.jpg

Te koop Residential Plot Costa Del Sol Mijas € 799.000,-

Price € 799.000,-
Plus d'information
1-7980e48d732b6fc85c14b43b94d2aa54.jpg

Te koop Residential Plot Costa Del Sol Estepona € 800.000,-

Price € 800.000,-
Plus d'information
1-7980e48d732b6fc85c14b43b94d2aa54.jpg

Te koop Residential Plot Costa Del Sol Estepona € 850.000,-

Price € 850.000,-
Plus d'information
1-7980e48d732b6fc85c14b43b94d2aa54.jpg

Te koop Residential Plot Costa Del Sol Estepona € 850.000,-

Price € 850.000,-
Plus d'information
Disclaimer | Links
Casadelmar %lng_cookie_notice% %lng_close%
x