Nueva Andalucía

Te koop Middle Floor Apartment Costa Del Sol Nueva Andalucía € 575.000,-

Ref.no: RSOR5252881
Price: € 575.000,-

1-7980e48d732b6fc85c14b43b94d2aa54.jpg

Te koop Middle Floor Apartment Costa Del Sol Nueva Andalucía € 575.000,-

Bedrooms2
Salles de bains2
Superficie du terrain124m²
Poolyes
Gardenyes
Parkingyes
Built year2012
Setting: Urbanisation
Orientation: South East
Condition: Good
Pool: Communal, Indoor, Heated, Children`s Pool
Climate Control: Air Conditioning
Views: Sea, Urban
Features: Covered Terrace, Lift, Fitted Wardrobes, Private Terrace, Gym, Sauna, Paddle Tennis, Storage Room, Jacuzzi, Barbeque, Double Glazing, 24 Hour Reception, Restaurant On Site
Furniture: Fully Furnished
Kitchen: Fully Fitted
Garden: Communal
Security: Gated Complex, 24 Hour Security
Parking: Underground
Category: Holiday Homes, Investment, Resale
Ref.no: RSOR5252881
Price: € 575.000,-

Plus d'information ›››
Te koop Middle Floor Apartment Costa Del Sol Nueva Andalucía € 575.000,-

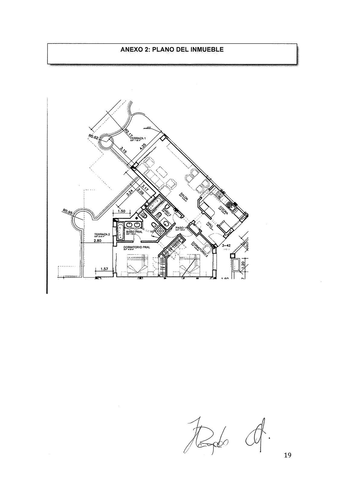
Elegant 2-Bedroom Apartment with Sea Views in Aloha Hill Club

Nestled in the prestigious Aloha Hill Club, this stylish 2-bedroom, 2-bathroom home offers a built size of 124 m² plus 35 m² of terraces, designed to bring in light and capture sweeping sea views. Its southeast orientation ensures brilliant morning light and a warm, welcoming ambiance throughout the day.

What sets this property apart is its location within a resort-style community that combines luxury, comfort, and convenience. Aloha Hill Club offers:
• Four outdoor swimming pools, including a children’s pool and a semi-Olympic pool heated in winter
• A fitness centre and spa spanning approximately 500 m²
• A pool bar & restaurant featuring a wood-fired pizza oven
• Lush, tropical gardens that surround pathways and communal areas
• Secure gated community with all the amenities you’d expect from a top-tier development
• Apartments fully furnished in modern style with personalized detailing

In terms of access and connectivity:
• The community is located in Golf Valley, giving it proximity to Marbella’s best amenities
• It’s only 5 minutes by car to Puerto Banús and 10 minutes to central Marbella
• The location is ideal for both daily living and holiday enjoyment

Alternatives

1-7980e48d732b6fc85c14b43b94d2aa54.jpg

Te koop Gelijkvloers appartement Costa Del Sol Estepona € 565.000,-

Price € 565.000,-
Plus d'information
1-7980e48d732b6fc85c14b43b94d2aa54.jpg

Te koop Middle Floor Apartment Costa Del Sol Nueva Andalucía € 499.000,-

Price € 499.000,-
Plus d'information
1-7980e48d732b6fc85c14b43b94d2aa54.jpg

Te koop Gelijkvloers appartement Costa Del Sol San Pedro De Alcántara € 520.000,-

Price € 520.000,-
Plus d'information
1-7980e48d732b6fc85c14b43b94d2aa54.jpg

Te koop Middle Floor Apartment Costa Del Sol Bel Air € 499.000,-

Price € 499.000,-
Plus d'information
Disclaimer | Links
Casadelmar %lng_cookie_notice% %lng_close%
x