Benalmadena Pueblo

Te koop Half vrijstaand huis Costa Del Sol Benalmadena Pueblo € 890.000,-

Ref.no: RSOR5249044
Price: € 890.000,-

1-7980e48d732b6fc85c14b43b94d2aa54.jpg

Te koop Half vrijstaand huis Costa Del Sol Benalmadena Pueblo € 890.000,-

Bedrooms3
Salles de bains2
Superficie du terrain389m²
Poolyes
Gardenyes
Parkingno
Built year2007
Instelling: dicht bij golf, dicht bij winkels, dicht bij stad, dicht bij scholen
Zwembad: privé
Klimaatregeling: airconditioning, open haard
Uitzicht: zee, bergen, panoramisch, tuin, zwembad
Caractéristiques : Terrasse couverte, Placards intégrés, Proximité des transports, Terrasse privée, Débarras, Buanderie, Salle de bains attenante, Jacuzzi, Barbecue, Double vitrage, Proximité d'une église, Sous-sol, Fibre optique
Beveiliging: elektrische jaloezieën, alarmsysteem
Ref.no: RSOR5249044
Price: € 890.000,-

Plus d'information ›››
Te koop Half vrijstaand huis Costa Del Sol Benalmadena Pueblo € 890.000,-

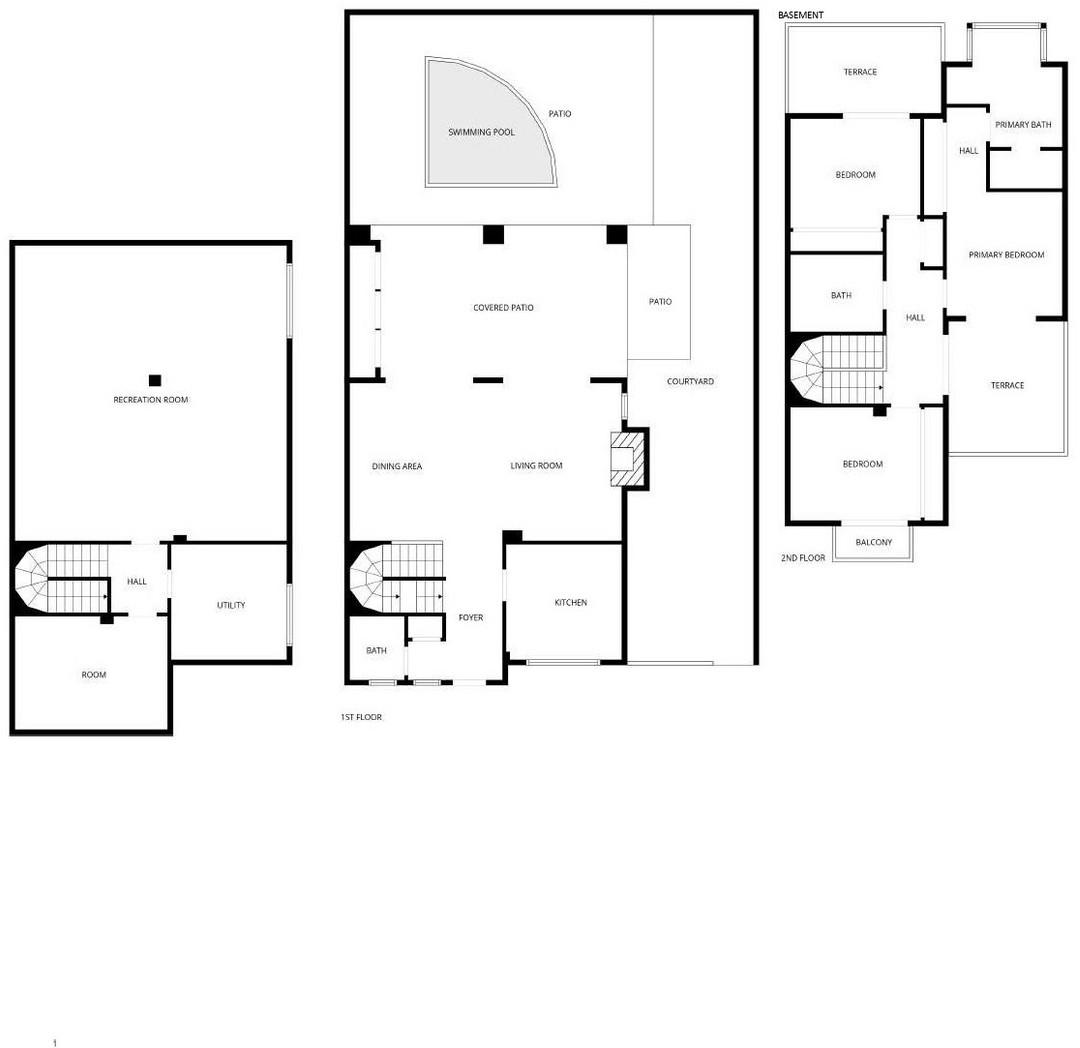
Nichée au cœur du charmant village de Benalmádena, cette élégante maison jumelée de 285 m² allie confort, espace et vues inoubliables.

Découvrez un salon chaleureux avec une cheminée accueillante, une salle à manger lumineuse et une cuisine spacieuse, idéale pour la vie de famille et les réceptions. À l'étage, vous trouverez trois chambres confortables avec placards du sol au plafond, deux salles de bains spacieuses et une terrasse. Au rez-de-chaussée, des toilettes pour invités complètent l'ensemble.

Cette maison offre un cadre de vie extérieur exceptionnel : deux vastes terrasses, un grand patio et un jardin privatif de 110 m². Détendez-vous au bord de votre piscine privée tout en admirant la vue imprenable sur les montagnes et le château de Colomares. Profitez de la vue sur la mer depuis la terrasse principale et la chambre.

Parmi les autres atouts, citons un grand sous-sol multifonctionnel baigné de lumière naturelle, une grande buanderie, un espace de rangement et un abri pour deux voitures.

Un magnifique mélange de tranquillité, d'élégance et de charme andalou — la maison attend ses nouveaux propriétaires.

Une maison qui a vraiment tout pour plaire. Contactez-nous pour une visite !

Alternatives

1-7980e48d732b6fc85c14b43b94d2aa54.jpg

Te koop Half vrijstaand huis Costa Del Sol Benalmadena Costa € 899.000,-

Price € 899.000,-
Plus d'information
1-7980e48d732b6fc85c14b43b94d2aa54.jpg

Te koop Half vrijstaand huis Costa Del Sol Torre Del Mar € 820.000,-

Price € 820.000,-
Plus d'information
1-7980e48d732b6fc85c14b43b94d2aa54.jpg

Te koop Duplexwoning Costa Del Sol The Golden Mile € 805.000,-

Price € 805.000,-
Plus d'information
1-7980e48d732b6fc85c14b43b94d2aa54.jpg

Te koop Half vrijstaand huis Costa Del Sol Estepona € 795.000,-

Price € 795.000,-
Plus d'information
Disclaimer | Links
Casadelmar %lng_cookie_notice% %lng_close%
x